Für das Miteinander Wohlfühlen: Die Wohnung ZEITREISE
Die „Belle Etage“ der Villa. Hier erfährst du auf 130 qm Wohnfläche auf zwei Ebenen tatsächlich eine Zeitreise durch die fast 250 Jahre alte Baugeschichte des Hauses. Du wechselst die Räume durch mächtige historische Eichenholztüren, bewunderst die Stuckelemente an den hohen Decken, studierst die Originalgemälde im Wohnzimmer, lässt dich von den alten Gussheizkörpern wohlig umwärmen während zur gleichen Zeit in der modernen, voll ausgestatteten Küche gekocht werden kann. Ein zusätzlicher Kaminofen wirkt ergänzend als Wärmequelle und schafft eine wunderschöne Raumatmosphäre. In der Zeitreise finden bis zu sechs Personen großzügigen Platz. In zwei Schlafzimmern findet ihr historische Wandnischen, welche seinerzeit als Kühlschränke dienten. Hier wurden Speisen und Getränke hineingestellt und durch die kalte Bruchsteinwand gekühlt. Heute dienen diese Nischen einem anderen Zweck, werden mittels Wandheizung temperiert und bieten einen idealen Rückzugsort zum Relaxen.
Altes Bruchsteinmauerwerk haben wir wieder sichtbar gemacht und in Szene gesetzt. Hochwertiges Lichtdesign macht jeden einzelnen Raum zusätzlich besonders. Der historische Eichendielenboden wurde von vielen Schichten Material befreit, aufgearbeitet und kann nun wieder in altem, neuen Glanz strahlen. Die Zeitreise bietet 3 separate Schlafzimmer mit jeweils einem Doppelbett, 2 Bädern inkl. WC und einem zusätzlichen, abschließbaren WC mit Waschbecken. Über eine neue halbgewendelte, innen liegende Eichentreppe gelangt ihr in den oberen Schlaf- und Badbereich.
Wer sich außen aufhalten möchte, geht einfach auf die direkt anliegende 70 qm große Gartenterrasse mit beleuchteter Gartenanlage. Wir haben den Außenbereich mit viel Liebe für euch neu gestaltet, so dass ihr an der großen Tafel oder im Loungebereich ganz bestimmt euren Lieblingsplatz finden werdet.
Über die Unterkunft AUSZEIT
Ein besonderes, liebevoll restauriertes Ferienhaus am Wasser. Platz für 6 Gäste auf 120 qm Wohnfläche inmitten von Monschau.
Ihr wohnt in einem denkmalgeschützten, zwischen 2018-2020 restaurierten Fachwerkhaus mit Bruchsteinkeller inmitten der historischen Altstadt, sehr romantisch am Laufenbach, direkt an einem kleinen Wasserfall. Es wurde um 1700 erbaut und gehört zu den ältesten Häusern in Monschau. Im ganzen Haus findet Ihr liebevolle Details, die es zu entdecken gibt und gemütliche Sitzgelegenheiten, die zum Verweilen einladen. Neben dem offen gestalteten Wohn-/Essbereich mit Wohnküche und Kochinsel, 3 Schlafzimmern, 2 Bädern, Regendusche, Gäste-WC, eigenem Stadtgärtchen am Bach, TV und kostenlosem W-LAN findet Ihr hier alles, was ihr für eure Auszeit benötigt. Für wohlige Wärme sorgen Infrarotheizkörper, die mit Ökostrom betrieben werden, so dass, zusammen mit der Verwendung natürlicher und traditioneller Baumaterialien ein ökologischer, grüner Faden das Haus durchzieht. Die Küche ist mit allem ausgestattet, was man zum Kochen braucht: Induktionsherd und Backofen, Kühlschrank mit Gefrierfach, Spülmaschine, Mikrowelle, Kaffeemaschine, Espressokocher, Wasserkocher, Toaster, Töpfe/Pfannen, Kochbesteck und Küchentücher. Eine Grundausstattung an Gewürzen, Salz/Pfeffer, Zucker und Kaffee ist für die ersten Tage immer vorhanden. Im Bruchsteinkeller steht Euch eine Waschmaschine zur freien Verfügung, auch eure Fahrräder könnt ihr dort abstellen. Durch die historische, bachseitige Stalltür habt ihr direkten Zugang zum Bach. Hier bietet ein Bruchsteinpodest den perfekten Sitzplatz zum gemütlichen Verweilen direkt am Wasserfall. Auch in unserem neu angelegten, hauseigenen Stadtgarten könnt Ihr bei einem Glas Wein das Rauschen des Baches genießen und, je nach Jahreszeit, von unserem Spalierobst oder den wilden Erdbeeren naschen.
GALERIE
Ferienwohnung für 6 Gäste
130 qm Wohnfläche auf 2 Ebenen | 3 Schlafzimmer
2 Bäder | Gäste-WC | 70 qm Gartenterrasse
„Hier schreibt Erholen Geschichte.“
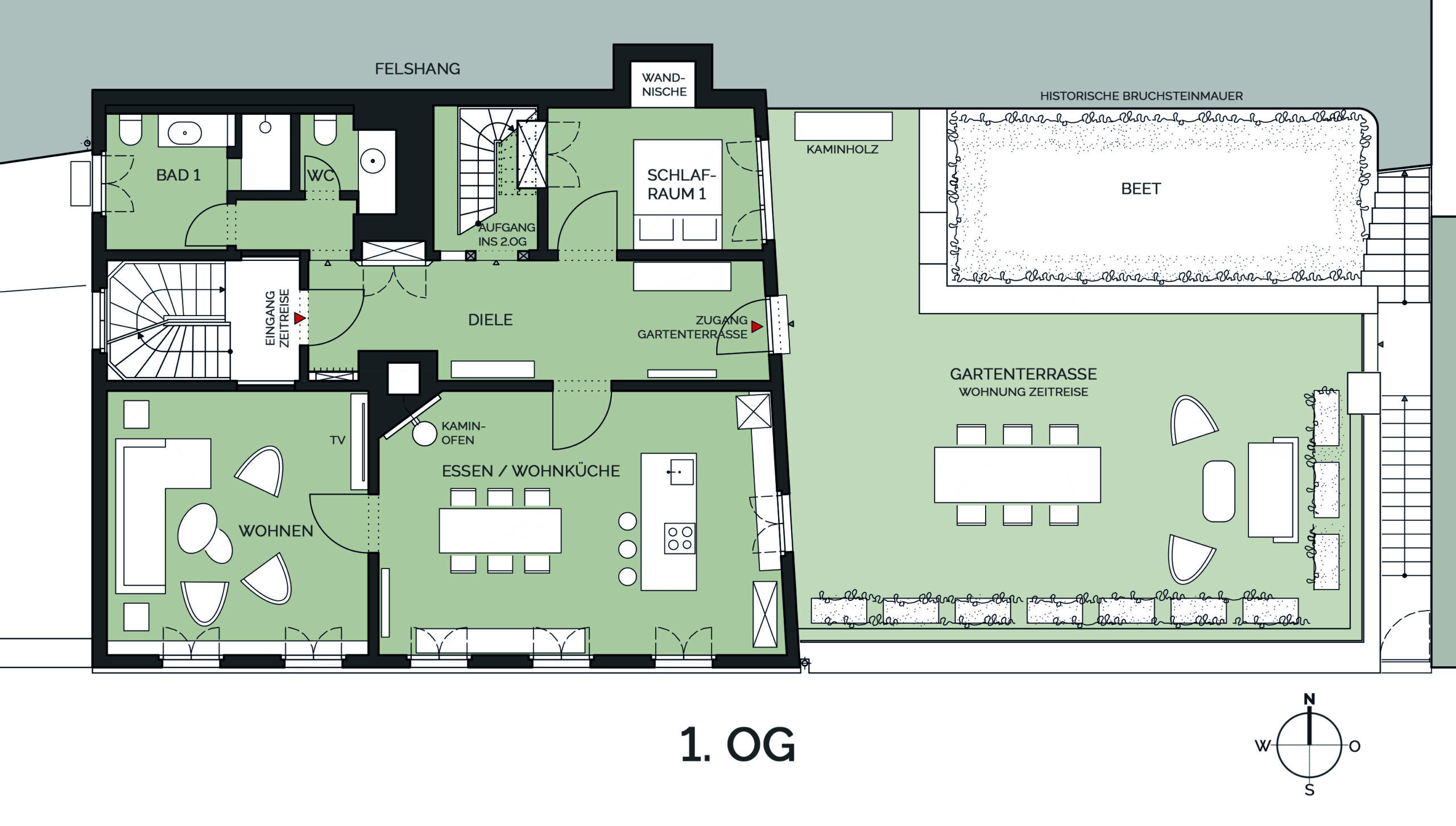
Grundriss 1. OG
Maisonettewohnung mit insgesamt 130 qm Wohnfläche im 1. OG und 2. OG des Hauses.
Eingangsebene im 1.OG, der „Belle Etage“, mit Diele, großzügigem Wohn- Essbereich mit Kaminofen sowie offener, voll ausgestatteter Wohnküche mit Kochinsel. Wohnzimmer mit Originalgemälden aus dem 18. Jahrhundert.
Schlafraum 1 mit 1 Doppelbett (160×200 cm) und beheizter Wandnische. 1 großes Bad mit Regendusche und WC. Separates Gäste-WC.
Direkter Zugang zur eigenen, 70 qm großen Gartenterrasse.
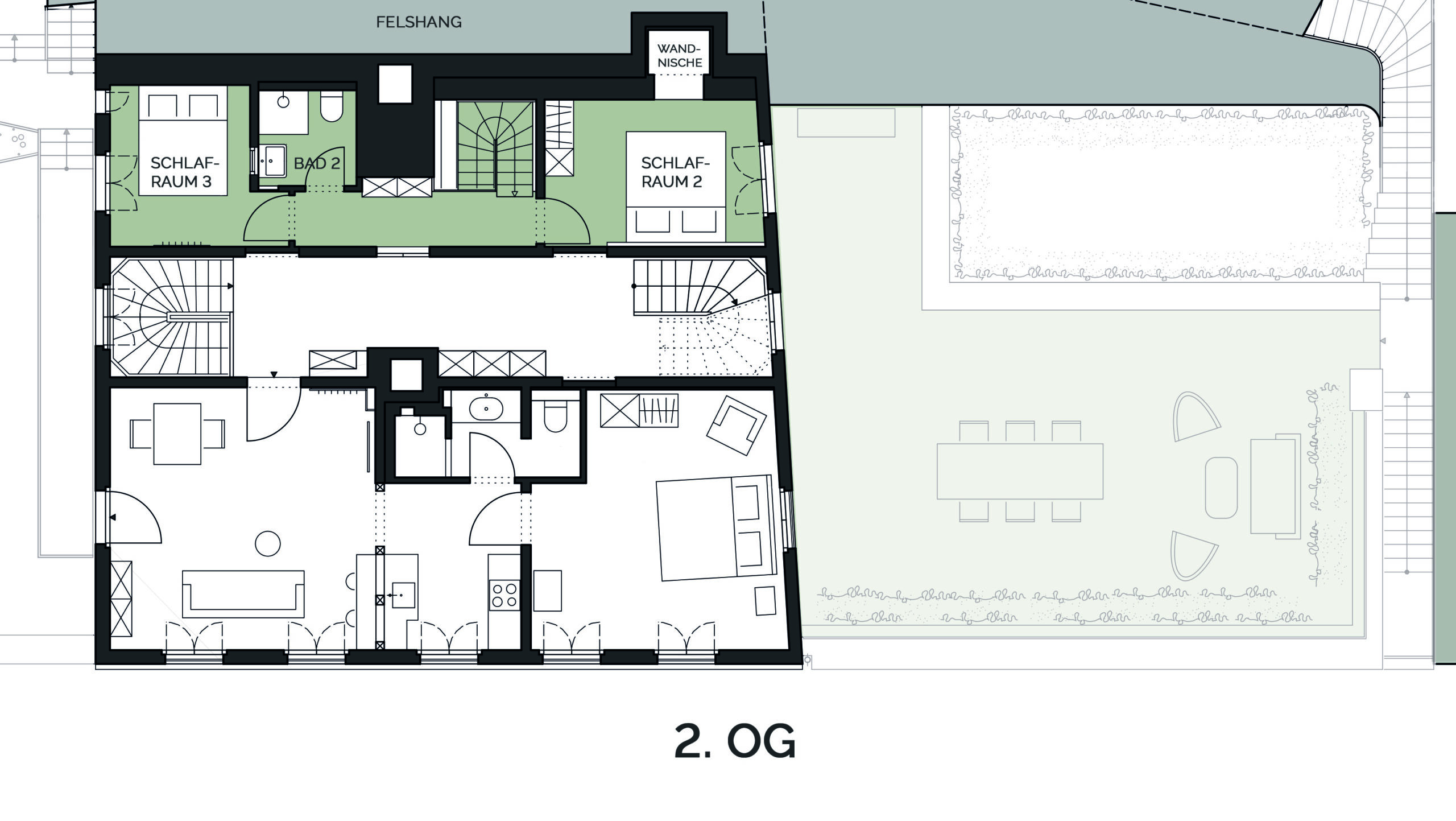
Grundriss 2. OG
Erschliessung der Räumlichkeiten im 2. OG (grün markierte Flächen) über eine neue, halbgewendelte Eichenholztreppe.
Schlafraum 2 mit Doppelbett (180×200 cm) und beheizter, historischer Wandnische. Schlafraum 3 mit Doppelbett (160×200 cm) und angrenzendem Bad mit Regendusche und WC.













